Tuscarora

Some shots from Tuscarora
A partial plat of Tuscarora and its water supply
A 1929 shot of Tuscarora looking southwest, courtesy UNR
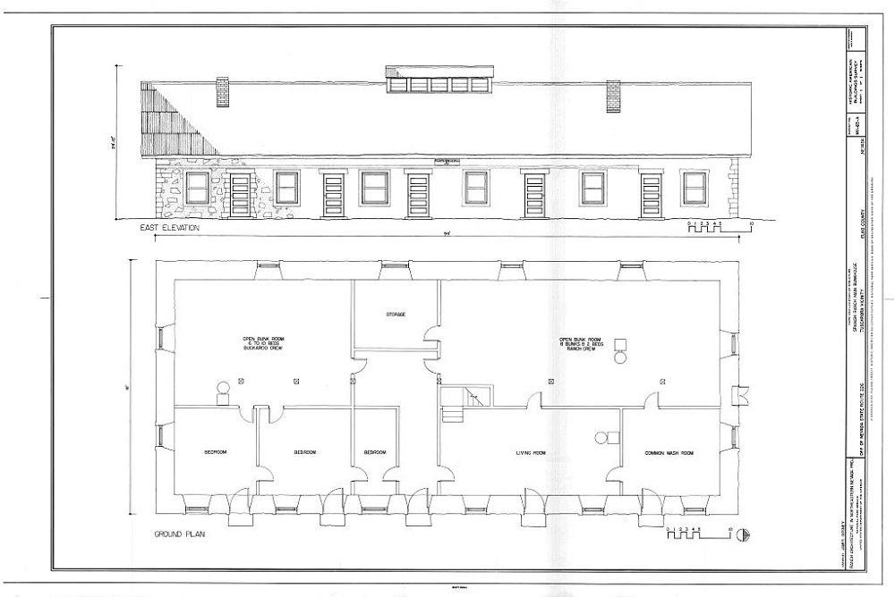
Plans of the main bunkhouse of the Spanish Ranch, located about 8 and a half miles NE of Tuscarora. Courtesy Library of Congress.
Spanish Ranch building
A 1929 shot of Tuscarora looking east, courtesy UNR
The Elko-Tuscarora Summit, March of 1930, courtesy UNR
A horse drawn sagebrush wagon at the Dexter Mill, 1911, courtesy UNR. Sagebrush was harvested for fuel for 25 miles around Tuscarora.
1906 Photo of a sage brush wagon for the Dexter mill, courtesy UNR. School building visible in background.
GRand Prize Mill, 1891, courtesy UNLV
North Belle Isle, 1890, courtesy UNLV
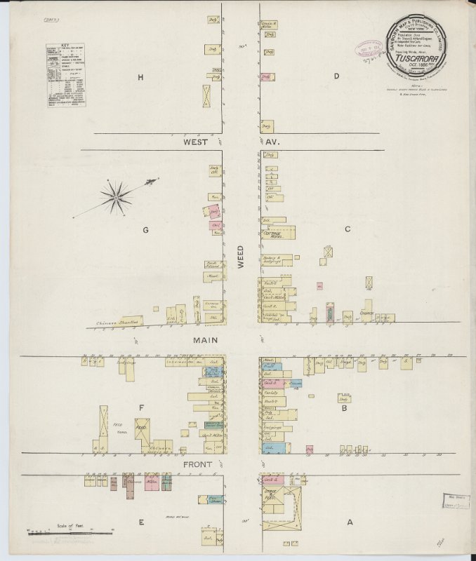
1886 Sanborn fire insurance map, courtesy Library of Congress.
1890 Sanborn Fire Insurance map, courtesy Library of Congress.
1871 Land office plat
Except from 1871 plat, with Chinese camps highlighted
1934 Nevada State highway map
Harold's Club ad from 1955 published in the Reno Evening Gazette
School House in Tuscarora, Nevada, Henchey, Paul L., UC Davis Library, Archives and Special Collections, 8 Oct. 1952
Masonic Temple, Henchey, Paul L., UC Davis Library, Archives and Special Collections, 8 Oct. 1952
Union MIll, Henchey, Paul L., UC Davis Library, Archives and Special Collections, 8 Oct. 1952
View of Tuscarora from the north, Henchey, Paul L., UC Davis Library, Archives and Special Collections, 8 Oct. 1952